Dù chỉ có một mặt thoáng, không gian trong nhà vẫn đủ ánh sáng tự nhiên và trông rộng hơn diện tích thực.
Ngôi nhà ống có quy mô 5 tầng, nằm trên thửa đất có diện tích 30,9 m2 có mặt tiền rộng 4,9 m, hình dáng không vuông vắn.
Với nhu cầu xây dựng không gian sinh hoạt cho một gia đình nhiều thế hệ, đơn vị thiết kế – thi công đặt trọng tâm vào các giải pháp giúp tối ưu ánh sáng và không khí tự nhiên. Ngoài ra, công trình vẫn đảm bảo đầy đủ công năng phục vụ nhu cầu sinh hoạt, đồng thời giữ được sự gắn kết giữa các thành viên.
Giải pháp thiết kế
Nhằm khắc phục nhược điểm diện tích nhỏ và chỉ có một mặt thoáng, thay vì chỉ chú trọng phân bổ diện tích theo chiều dài và chiều rộng, nhóm thiết kế chọn cách tiếp cận thiết kế không gian sống từ góc nhìn thể tích. Cụ thể, khi chiều dài và chiều rộng bị giới hạn, chiều cao trở thành yếu tố quan trọng giúp mở rộng không gian.
Phần trần cao và các khoảng thông tầng đặt xen kẽ khắp công trình, cho phép ánh sáng tự nhiên xuyên suốt khắp không gian. Nhờ vậy, ánh sáng không chỉ được chiếu trực tiếp mà còn khuếch tán đều từ trên xuống, giảm cảm giác bí bách và tăng sự thoáng đãng.
Giếng trời tại vị trí giữa phòng ngủ và cầu thang giúp tối ưu ánh sáng cho trục giao thông chính trong nhà. Ngoài ra, sự xuất hiện của các khu tiểu cảnh nhỏ cũng giúp căn nhà có thêm không gian xanh và bổ sung góc thư giãn.
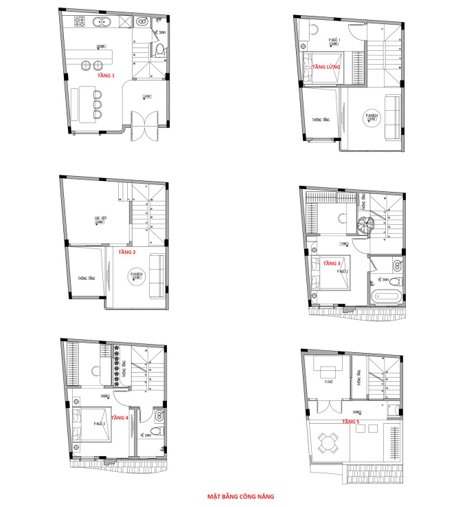
Công năng








Tầng một được bố trí khu bếp – ăn. Tầng lửng là một phòng ngủ. Tầng hai gồm phòng khách và một phòng ngủ. Các phòng ngủ còn lại đặt trên tầng 3-4. Tầng trên cùng đặt phòng thờ và khu sinh hoạt chung.
Nội thất được thiết kế nhỏ gọn nhưng đa năng, đảm bảo mỗi không gian đều phát huy tối đa giá trị sử dụng mà vẫn giữ được sự gọn gàng, ngăn nắp.

